Это преднапиленный конструктор дома, который включает в себя прежде всего комплект для сборки деревянного каркаса, состоящий из нескольких элементов:
■ Сращенная строганная доска
■ Стойки
■ Обвязки
■ Ригели
■ Лаги
■ Балки
■ Стропила, прогоны и пр.
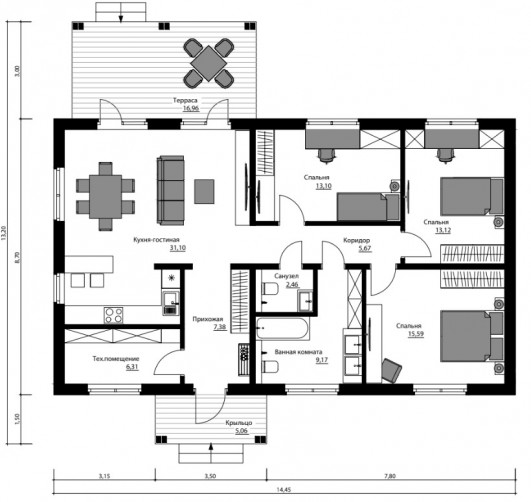
Большой и светлый каркасный дом площадью 124 м2, созданный для комфортной жизни. Вас встретит стильная прихожая, ведущая в уютную гостиную с панорамным освещением, где можно собраться за чашкой чая или принять гостей. Современная кухня, объединенная с гостиной, станет сердцем дома, где рождаются кулинарные шедевры и теплые воспоминания. В доме три уютные спальни, каждая из которых — это личное пространство для отдыха, два санузла подчеркивают практичность дома, а просторная терраса станет идеальным местом для утреннего кофе или вечерних посиделок на свежем воздухе. Для хранения и размещения инженерных предусмотрено техническое помещение.
Выбор местоположения
Мы свяжемся с Вами в течение дня.