Проект «Воробьево» - это уютный мансардный дом из СИП панелей с 4-мя спальнями, террасой и крыльцом. Такой дом прекрасно подойдет для достаточно большой семьи и каждому тут найдется свой уголок.
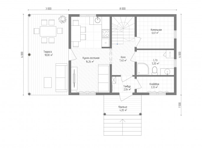
В дом реализовано два входа, один с крыльца в тамбур, а второй с террасы в совмещенную с гостиной кухню. Площадь террасы 18 м2, крыльца – 4,2 м2. Крыльцо и терраса крытые, огороженные.
Планировка первого этажа простая и удобная. Из тамбура можно попасть в котельную и холл. Холл переходит в кухню-гостиную (15,96 м2), здесь же лестница на второй этаж и двери в санузел и спальню (8,87 м2).
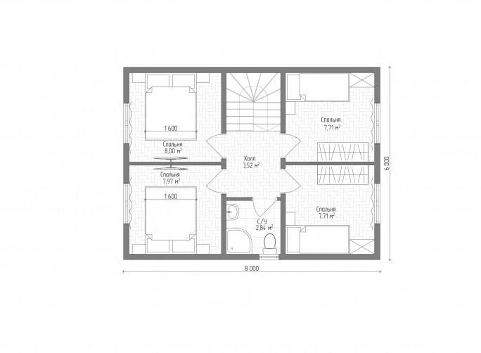
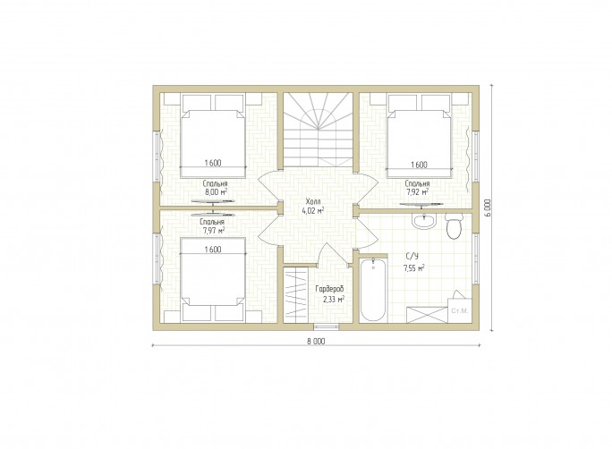
На втором этаже планировка классическая – небольшой холл, три спальни (7,84 м2 каждая), санузел и небольшая гардеробная. Отметим, что гардеробная сделана благодаря надстройке, которая придала дому более законченный вид, а гардеробной позволила избежать специфических особенностей мансардного дома.
Выбор местоположения
Мы свяжемся с Вами в течение дня.